注册建造师网注册建造师网
  • 登陆本站

    立即登录

    0
    文章
    0
    评论
    0
    积分
  • 首页
  • 一级建造师
  • 二级建造师
  • 造价工程师
  • 监理工程师
  • 安全工程师
  • 消防工程师
  • 文库
登录
  • 二级建造师市政工程考哪几科,二级建造师市政工程
    二级建造师

    二级建造师市政工程考哪几科,二级建造师市政工程

    二级建造师有这六个专业类别建筑工程公路工程水利水电工程矿业工程机电工程和市政公用工程一六大类介绍 1建筑工程 可从事行业房地产开发工程技...

    2024-08-20
    0 342
  • 岩土工程师的专业考试岩土工程师的专业考试有哪些
    岩土工程师

    岩土工程师的专业考试岩土工程师的专业考试有哪些

    1、专业考试的专业范围包括岩土工程勘察浅基础深基础地基处理边坡和基坑特殊土和不良地质建筑工程抗震地基检测注册岩土工程师备考的注意事项 1...

    2024-08-20
    0 305
  • 2018注册安全工程师案例真题,2018年注册安全工程师案例分析真题
    安全工程师

    2018注册安全工程师案例真题,2018年注册安全工程师案例分析真题

    1、12018年参考的人都是一些在职很久的人,他们的学习能力肯定会跟学生时代相比,有一点点退化了,所以学期该门考试里面的理论知识起来,就...

    2024-08-20
    0 295
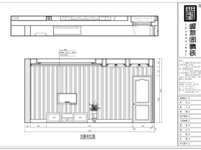
  • 卧室立面图,卧室立面图英文
    工程资源

    卧室立面图,卧室立面图英文

    建筑平面图标注的尺寸有外部尺寸和内部尺寸1外部尺寸 在水平方向和竖直方向各标注三道最外一道尺寸标注房屋水平方向的总长总宽称为总尺寸中间一...

    2024-08-20
    0 314
  • 监理工程师是谁都能考吗监理工程师考试是谁组织的
    监理工程师

    监理工程师是谁都能考吗监理工程师考试是谁组织的

    1、相比一建和一造来说,注册监理工程师考试难度稍微小一点但因为监理工程师报考条件限制,不是所有人都能考,考生大多数是上班族,不管是时间和...

    2024-08-20
    0 345
  • 建造师和结构工程师哪个难建造师和结构工程师
    结构工程师

    建造师和结构工程师哪个难建造师和结构工程师

    从毕业开始,并不代表你从此结束考试的生涯,特别是对于工程人来说,未来面临的考试还有很多,而且更难,看你是否选择。 毕业后有一到两年...

    2024-08-20
    0 334
  • 邮电bim高级工程师报名查询,邮电bim高级工程师报名查询入口
    BIM工程师

    邮电bim高级工程师报名查询,邮电bim高级工程师报名查询入口

    问:一级建造师与二级建造师挂靠费多少? 答:很多客户想寻找一级建造师挂靠业务,但是他们不知道价格,往往心里没底,这里小编就向大家介...

    2024-08-20
    0 239
  • 岩土工程师人数岩土工程师人数占比
    岩土工程师

    岩土工程师人数岩土工程师人数占比

    1、根据网络统计,岩土工程师持证人数大约为2w人,平均通过率为1686%,难度还是比较大的注册岩土工程师含金量高,注册岩土工程师是岩土工...

    2024-08-20
    0 975
  • 吴亚馨黑木耳图片搜索吴亚馨黑木耳图片
    工程资源

    吴亚馨黑木耳图片搜索吴亚馨黑木耳图片

    2010年2月3日 吴亚馨的长尾关键词挖掘,提供吴亚馨相关的其他长尾关键词。...

    2024-08-20
    0 534
  • 四川省二级建造师考试,四川省二级建造师考试地点
    二级建造师

    四川省二级建造师考试,四川省二级建造师考试地点

    21年四川省二级建造师考试各科分数线为,法规60分,施工管理67分,建筑72分,公路市政水利矿业和机电实务专业60分今年分数线除了法规建...

    2024-08-20
    0 375
  • 北京bim工程师考试报名,北京bim工程师考试报名官网
    BIM工程师

    北京bim工程师考试报名,北京bim工程师考试报名官网

    上半年考试夏季每年6月14日左右报名时间 春季,每年3月初至5月5日左右下半年考试冬季每年12月13日左右报名时间秋季,每年9月初至11...

    2024-08-20
    0 301
  • 造价工程师辅导,造价工程师辅导培训
    造价工程师

    造价工程师辅导,造价工程师辅导培训

    导语 根据最新的移民局EOI官方报告,会计、审计配额这个财政年已经用完!IT的专业目前也相对火爆!与会计审计一样,财年还未结束...

    2024-08-20
    0 326
  • 交通专业监理工程师考试真题的简单介绍
    监理工程师

    交通专业监理工程师考试真题的简单介绍

    其中建设工程监理基本理论和相关法观建设工程合同管理为基础科目,建设工程目标控制,建设工程监理案例分析为专业科目另建设工程监理案例分析为主...

    2024-08-20
    0 404
  • 云南注册安全工程师成绩查询时间云南注册安全工程师证书领取
    安全工程师

    云南注册安全工程师成绩查询时间云南注册安全工程师证书领取

    秋意渐浓,这是个收获的季节,更是一个让味蕾绽放的时节!天气日渐转凉,人们的心却是热的,十月一的国庆节和农历中秋节,这是个举国欢庆和万家团...

    2024-08-20
    0 288
  • 一级建造师报考条件改革一级建造师报考条件调整
    一级建造师

    一级建造师报考条件改革一级建造师报考条件调整

    搜索微信号:HLJSZGL时时发布路桥行业动态信息、求职招聘、技术交流,视频软件、资源共享、测量测绘、实战培训(测量、内业资料、造价...

    2024-08-20
    0 335
  • 二级消防工程师成绩什么时候出来青海二级消防工程师证书领取
    消防工程师

    二级消防工程师成绩什么时候出来青海二级消防工程师证书领取

    老司机: 对于消防人,是好事, 公安口的资源多多, 不是好事,当心 你的劣迹成为 在重大案件处置时 与你谈判的砝码(逼你...

    2024-08-20
    0 278
首页 上一页 795 796 797 798 799 800 801 802 803 下一页 尾页

正在加载...

没有更多内容

加载错误

Copyright 2019-2022 www.erjian.cc All Rights Reserved Powered by 注册建造师网 | 滇ICP备2022003306号-2